St-Anns-Well-Malvern-External.jpg
St Ann's Well Cafe, Malvern
St-Anns-Well-Malvern-Cafe-Door.jpg
St-Anns-Well-Malvern-Counter.jpg
St Ann's Well Cafe, Malvern
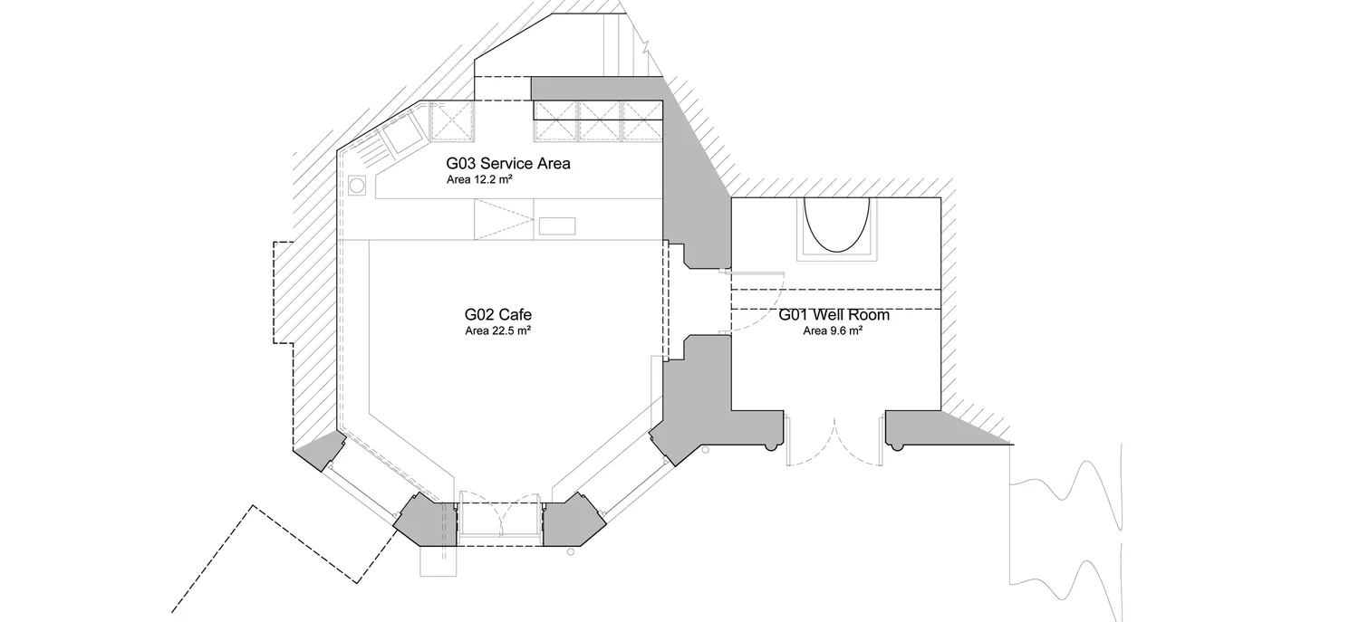
St-Anns-Well-Malvern-Ground-Plan.jpg
St-Anns-Well-Malvern-First-Plan.jpg
St-Anns-Well-Malvern-Kitchen.jpg
St-Anns-Well-Malvern-Octagon-Room.jpg
prev / next